Büro- und Gewerbebau | Holzbau

Neubau eines Logistikgebäudes für Kyocera Fineceramics

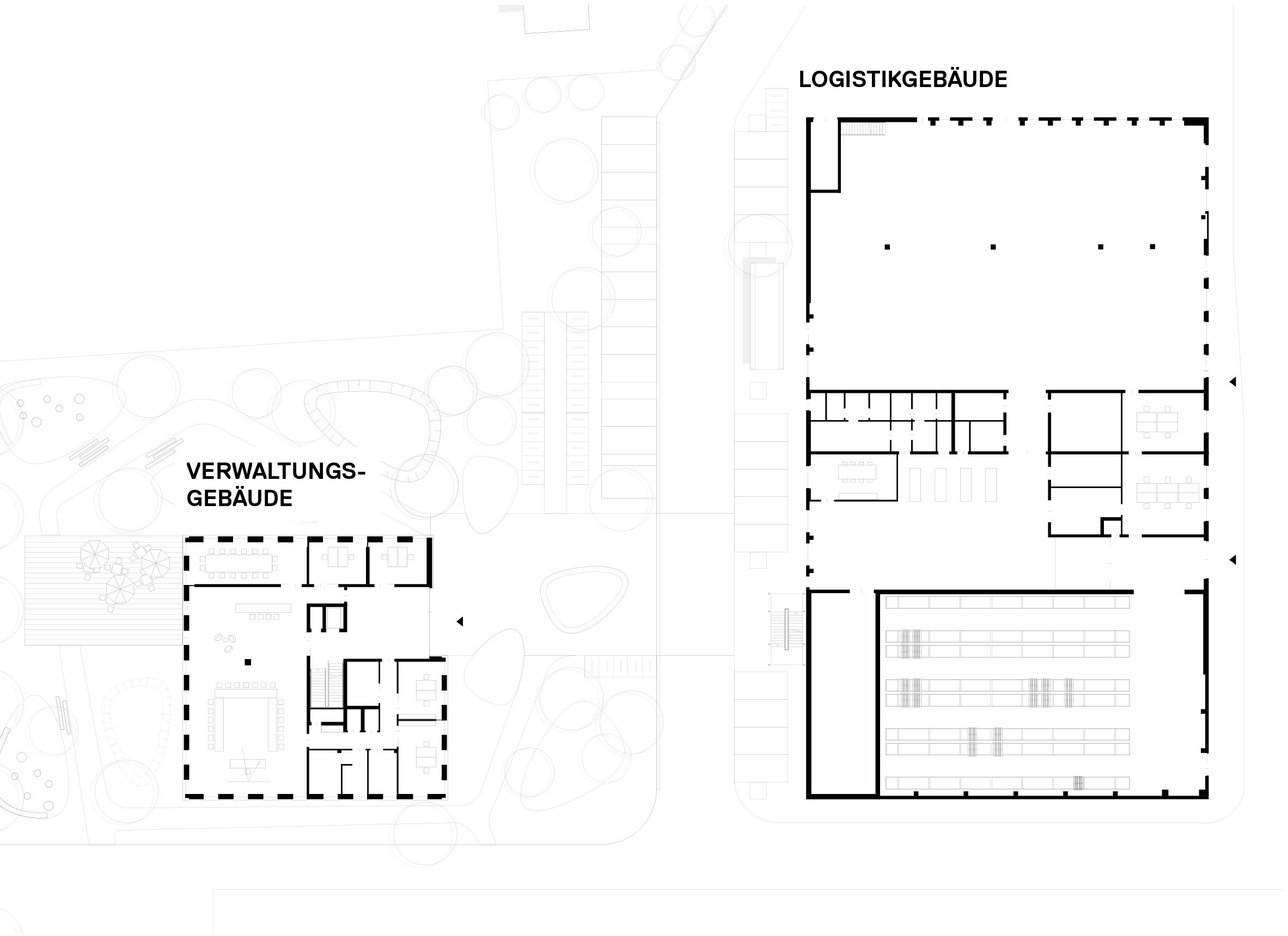
Mit dem Neubau eines Verwaltungs- und Logistikgebäudes für die Kyocera Fineceramics Europe GmbH in Mannheim wurde ein zukunftsorientierter Industriebau realisiert, der Gestalt, Funktion und Konstruktion in einem integralen Ansatz verbindet. Das Projekt versteht sich als bauliche Neuordnung eines gewachsenen Industrieareals und entwickelt den Standort zu einem klar strukturierten, campusartigen Ensemble mit langfristiger Perspektive.

Neben dem Verwaltungsgebäude bildet das Logistik- und Produktionsgebäude einen zentralen Baustein der neuen Standortstruktur. Als funktional präzise organisierter Baukörper übernimmt es eine wesentliche Rolle für die logistischen und produktionsbezogenen Abläufe des Unternehmens. Die Architektur verbindet eine robuste industrielle Erscheinung mit einer zeitgemäßen Holzbaukonstruktion und integriert konstruktive Effizienz, wirtschaftliche Umsetzung und nachhaltige Materialstrategien.

So entsteht ein Industriebau, der betriebliche Anforderungen, konstruktive Innovation und ressourcenschonende Bauweise zu einer konsistenten architektonischen Gesamtstrategie verbindet.
Kenndaten
Auftrag | Direktauftrag
Bauherr | Kyocera Fineceramics Europe GmbH, Mannheim
LPH | 1 – 8
BGF | 2.200 m²
Fertigstellung | 06/2025
Team | S. Fischer, S. Solmaz, T. Kraft, J. Reinhard
Regionales
  • Stärken des für Kyocera wichtigen Standortes in Mannheim.
  • Ein erweiterungsfähiger Gewerbecampus aus Alt- und Neubauten.
  • Regionale Planer und Handwerksbetriebe bauen an der Zukunft eines weltweit agierenden Unternehmens.
Besonderheiten
  • Holzrahmenbau mit hohem Vorfertigungsgrad, der wirtschaftliche Spannweiten sowie eine präzise und schnelle Montage ermöglicht.
  • Sichtbare Holzkonstruktion im Innenraum, die die konstruktive Struktur ablesbar macht und zu einem angenehmen Raumklima beiträgt.
  • Robuste Wellblechfassade, die den industriellen Charakter betont und einen bewussten Kontrast zur inneren Holzkonstruktion bildet.
Architektonisches Konzept

Das Logistik- und Produktionsgebäude ergänzt das Ensemble als klar gefasster Baukörper innerhalb des neu strukturierten Industrieareals und bildet das funktionale Gegenstück zum Verwaltungsgebäude. Eine Holzrahmenkonstruktion mit robuster Wellblechfassade prägt die industrielle Erscheinung. Im Inneren bleibt die Holzkonstruktion sichtbar und macht die konstruktive Struktur der Halle ablesbar. Die Halle ist auf effiziente logistische Abläufe und wirtschaftliche Flächennutzung ausgerichtet. Die Holzrahmenbauweise ermöglicht große, flexibel nutzbare Spannweiten bei geringem Eigengewicht. Ein hoher Vorfertigungsgrad verkürzt Bauzeiten und erhöht die Ausführungspräzision.

Konstruktion und Materialität

Die Konstruktion basiert auf einer vorgefertigten Holzrahmenbauweise mit sichtbaren Holzstrukturen im Innenraum. Eine robuste Wellblechfassade bildet die äußere Hülle und betont den industriellen Charakter des Gebäudes.

Weitere Projekte

Artem, Neubau eines Bürogebäudes, Mannheim-Neuostheim
Neubau eines Büroensembles, Mannheim-Neuostheim
Revitalisierung des Weldegartens, Plankstadt